SAINT ETIENNE DESIGN & FOCH
Description :
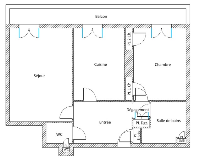
Appartement de 62,33 m2. Séjour a l'ouest de 21,77 m2 ouvrant sur balcon filant. Cuisine équipe, Belle chambre de 13,45 m2.
Prix : 80 000 € honoraires d'agence inclus à 7200 TTC à la charge de l'acquéreur. Prix hors honoraires d'agence: 72800€.
Les informations sur les risques auxquels ce bien est exposé sont disponibles sur le site Géorisques : www.georisques.gouv.fr
Votre première visite en vidéoconférence.
Diagnostic de Performance Énergétique
Géolocalisation :
| Ville | Saint-Etienne |
|---|---|
| Quartier | Cité du Design |
| État du bien | Rénové |
| Surface habitable | 63 m² |
| Surface loi Carrez | 62,33 m² |
| Nb de pièces | 2 |
| Nb de chambres | 1 |
| Exposition | Ouest |
| Étage | 1 |
| Nombre d'étages | 9 |
| Nb de salles de bains | 1 |
| Nb de wc | 1 |
| Type de chauffage | Collectif |
| Coût chauffage | 814 € /an |
| Charges | 1 741 € /an |
| 145,08 € /mois | |
| 2,30 € /m²/mois | |
| Taxe foncière | 1 326 € /an |
| 111 € /mois | |
| 21 € /m²/an | |
| Prix | 80 000 € |
| Nombre de lots | 18 |
| Réf | V1226 |
Détails :
- Ascenseur
- Cave
- Cuisine équipée
- Parquets
- Balcon filant
- Honoraires Charge Vendeurs



