CONDITION DES SOIES
Description :
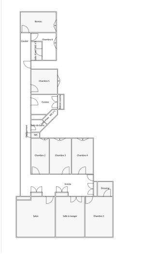
Appartement Bourgeois de 243,97 m2. Double réception de 50,86 m2, parquets, cheminées, boiseries. Cuisine avec balcon. 6 chambres , bureau, 3 bains. 2 garages, parking. Cave et grenier.
Les informations sur les risques auxquels ce bien est exposé sont disponibles sur le site Géorisques : www.georisques.gouv.fr
Votre première visite en vidéoconférence.
Clip-view :
Diagnostic de Performance Énergétique
Géolocalisation :
| Ville | Saint-Etienne | 
|---|---|
| État du bien | Rénové | 
| Surface habitable | 245 m² | 
| Surface loi Carrez | 243,97 m² | 
| Nb de pièces | 9 | 
| Nb de chambres | 6 | 
| Exposition | Est-ouest | 
| Étage | 2 | 
| Nombre d'étages | 4 | 
| Nb de salles de bains | 3 | 
| Nb de wc | 2 | 
| Type de chauffage | Collectif | 
| Coût chauffage | 3 872 € /an | 
| Charges | 6 159 € /an | 
| 513,25 € /mois | |
| 2,09 € /m²/mois | |
| Taxe foncière | 3 154 € /an | 
| 263 € /mois | |
| 13 € /m²/an | |
| Prix | 295 000 € | 
| Nombre de lots | 12 | 
| Réf | V1156 | 
Détails :
- Ascenseur
- Cave
- Garage
- Balcon
- Cuisine équipée
- Parquets
- Cheminées
- Parking
- 2 Réceptions
- Bureau
- Vue dégagée
- Honoraires Charge Vendeurs








